Aktuálně můžete v lokalitě Olomouc vybírat z nabídky 22 domů.
Přehled nemovitostí: prodej domy > rodinné domy Zpět na přehled nabídek

Prodej rodinného domu 4+kk s garáží / Olomouc - Slavoje Kovaříka

242 m2

143 m2

B - Velmi úsporná

468/25

21.04.2026

Cena: 13400000 CZK / objekt
Poznámka k ceně: včetně DPH, včetně poplatků, včetně provize, včetně právního servisu 1

Poslat dotaz k nabídce
Zásady používání osobních údajů

Prodejce

Makléř: Čunderlová Naďa

Telefon: 603 177 ...

E-mail: nada@me ...

Zobrazit celý kontakt

Nemovitost nabízí

Metr2 reality s.r.o.

Litovelská 1340/2C, 779 00 Olomouc

www.metr2reality.cz

Zobrazit kontakt na RK

Zobrazit všechny nabídky RK

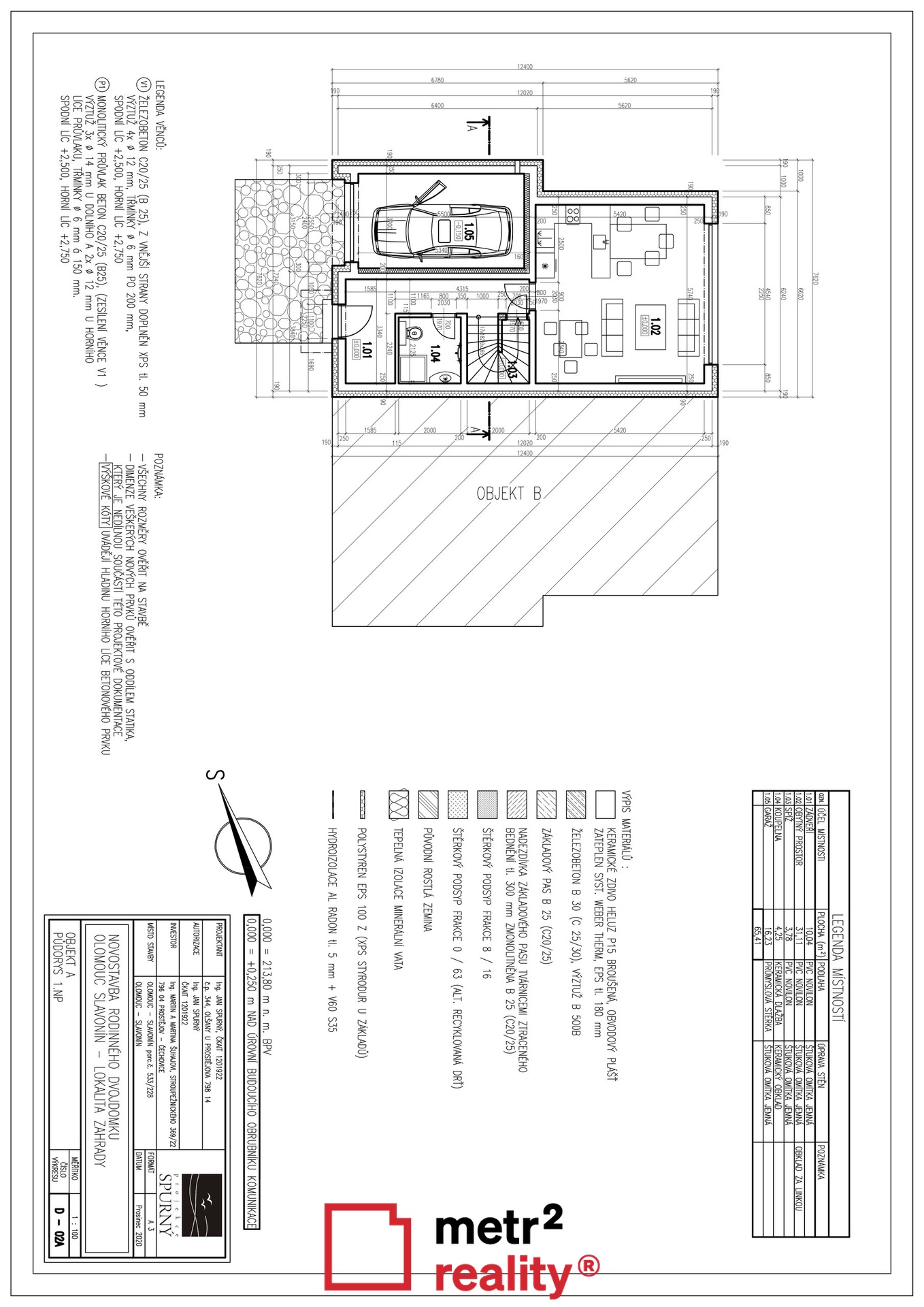
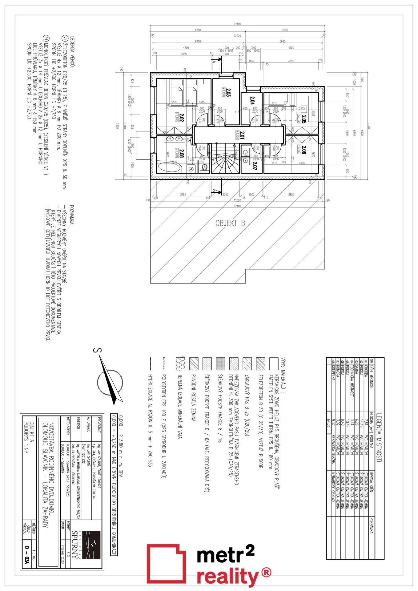
Ve výhradním zastoupení majitele nabízíme k prodeji moderní patrový rodinný dům o dispozici 4+kk, situovaný v atraktivní a klidné lokalitě v Olomouci Slavoníně, která patří mezi nejvyhledávanější části města Olomouc. Dům je ideální pro rodinné bydlení a nabízí nadstandardní užitnou plochu, vlastní zahradu a garáž. Celková plocha pozemku činí 242 m2, užitná plocha domu je 143 m2. V přízemí se nachází prostorný obývací pokoj s přípravou na kuchyňský kout a přímým vstupem na zahradu francouzským oknem, koupelna s WC a spižírnou pod schodištěm. V přízemí je dále prostorné zádveří a garáž. V patře jsou situovány tři ložnice, koupelna s vanou a sprchovým koutem a druhé WC, technická místnost a dvě šatny. Podlahové vytápění a ohřev vody je zajištěno tepelným čerpadlem. Všechna okna jsou plastová v barvě antracit s izolačním trojsklem a přípravou na venkovní žaluzie. Součástí domu je integrovaná garáž a další venkovní parkovací stání před domem, což poskytuje pohodlné parkování pro dvě vozidla. Slavonín je klidná městská část Olomouce s výbornou občanskou vybaveností - v docházkové vzdálenosti se nachází školy, školky, MHD, obchody, zdravotnická zařízení, cyklostezky i přírodní parky. Centrum Olomouce je dostupné během několika minut autem nebo MHD. Vynikající je i napojení na dálnici D35. Cena uvedená v inzerci je za dům ve stavu uzavřené hrubé stavby včetně rozvodů a omítek, na klientovi bude, aby si dokončil koupelny, podlahové krytiny a interiérové dveře. Je možná i dohoda dokončit dům na klíč na přání klienta. Dům je nyní ve výstavbě a je ve fázi hrubé stavby. V případě zájmu o prohlídku nás neváhejte kontaktovat, rádi Vás domem provedeme.



Nahoru