Makléř: Čunderlová Naďa
Telefon: 603 177 ...
E-mail: nada@me ...
Zobrazit celý kontaktTelefon: 603 177 771
E-mail: nada@metr2reality.cz
Nemovitost nabízí
Metr2 reality s.r.o.
Litovelská 1340/2C, 779 00 Olomouc
Zobrazit kontakt na RK
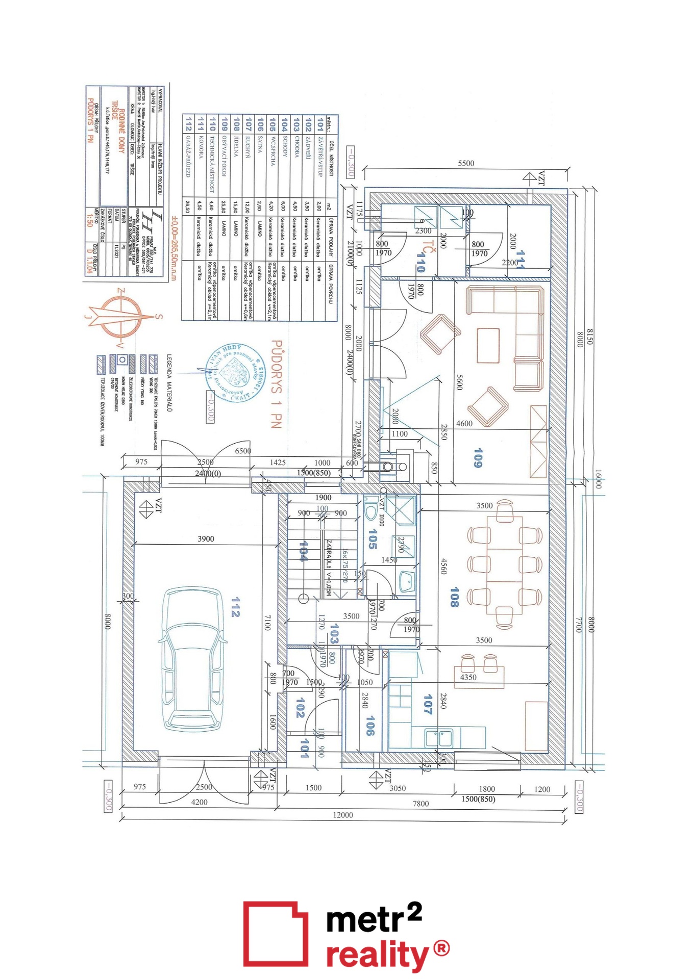
Ve výhradním zastoupení majitele si Vám dovolujeme nabídnout k prodeji novostavbu krajního řadového domu v obci Tršice, která je vzdálená 16 km od Olomouce. Dům je nyní ve výstavbě a termín dokončení je naplánovaný do konce roku 2025. Jedná se o dvoupodlažní zděný dům o dispozici 5+kk s garáží, užitná plocha domu činí krásných 173 m2 + garáž 28 m2. K domu náleží pozemek o výměře 214 m2. V přízemí se nachází vstupní chodba, ze které se vchází do koupelny s WC, kuchyně s jídelnou, obývacího pokoje, komory a garáže, v patře jsou pak čtyři samostatné ložnice, velká šatna a druhá koupelna s WC. Z obývacího pokoje se francouzským oknem dostanete na oplocený dvůr, který nabízí maximální soukromí na odpočinek. Dům bude napojen na veškeré inženýrské sítě - vodovod, kanalizace, elektřina. Vytápění bude zajišťovat tepelné čerpadlo voda - vzduch, v přízemí bude podlahové vytápění, v patře pak radiátory. Dům bude dokončen ve vysokém standardu, vyjma kuchyňské linky. Dům má sedlovou střechu, krytina poplastovaný plech, okna jsou plastová s trojskly. V interiéru budou laminátové podlahy v kombinaci s dlažbou, obložkové dýhované dveře, schodiště do patra bude monolitické s dřevěným obložením z dubového masivu. Obec Tršice nabízí svým obyvatelům veškerou občanskou vybavenost, nachází se zde mateřská i základní škola, zdravotní středisko, sportovní zařízení s tenisovými kurty, obchod aj. Velkou výhodou je velmi dobrá dopravní dostupnost do Olomouce i Přerova. V případě zájmu o bližší informace či prohlídku nás neváhejte kontaktovat.
Prodej rodinného domu, 194 m2, Tršice
Nabízíme vám krásnou hrubou stavbu s velkým pozemkem o rozloze 1371 m2. Stavba domu je o dispozici 5+kk v lokalitě, která zaručuje soukromí, klid a…
Rodinný dům, prodej, Tršice, Olomouc
Ve výhradním zastoupení majitele nabízíme k prodeji rodinný dům se zahradou v obci Tršice, určený ke kompletní rekonstrukci nebo demolici. Jedná se o…